Ir al contenido principal

RQR arquitecto

Estudio de Arquitectura, Urbanismo e Interiorismo

RQR arquitecto

Menú principal

  • Inicio
  • Contacto
  • Equipamiento
  • Residencial
  • Rehabilitaciones

Navegador de imágenes

← Anterior Siguiente →

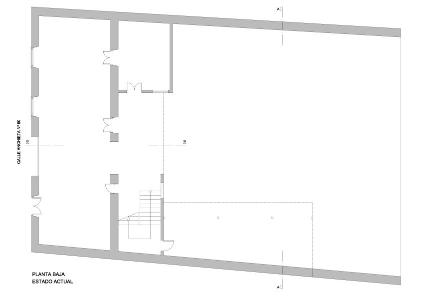
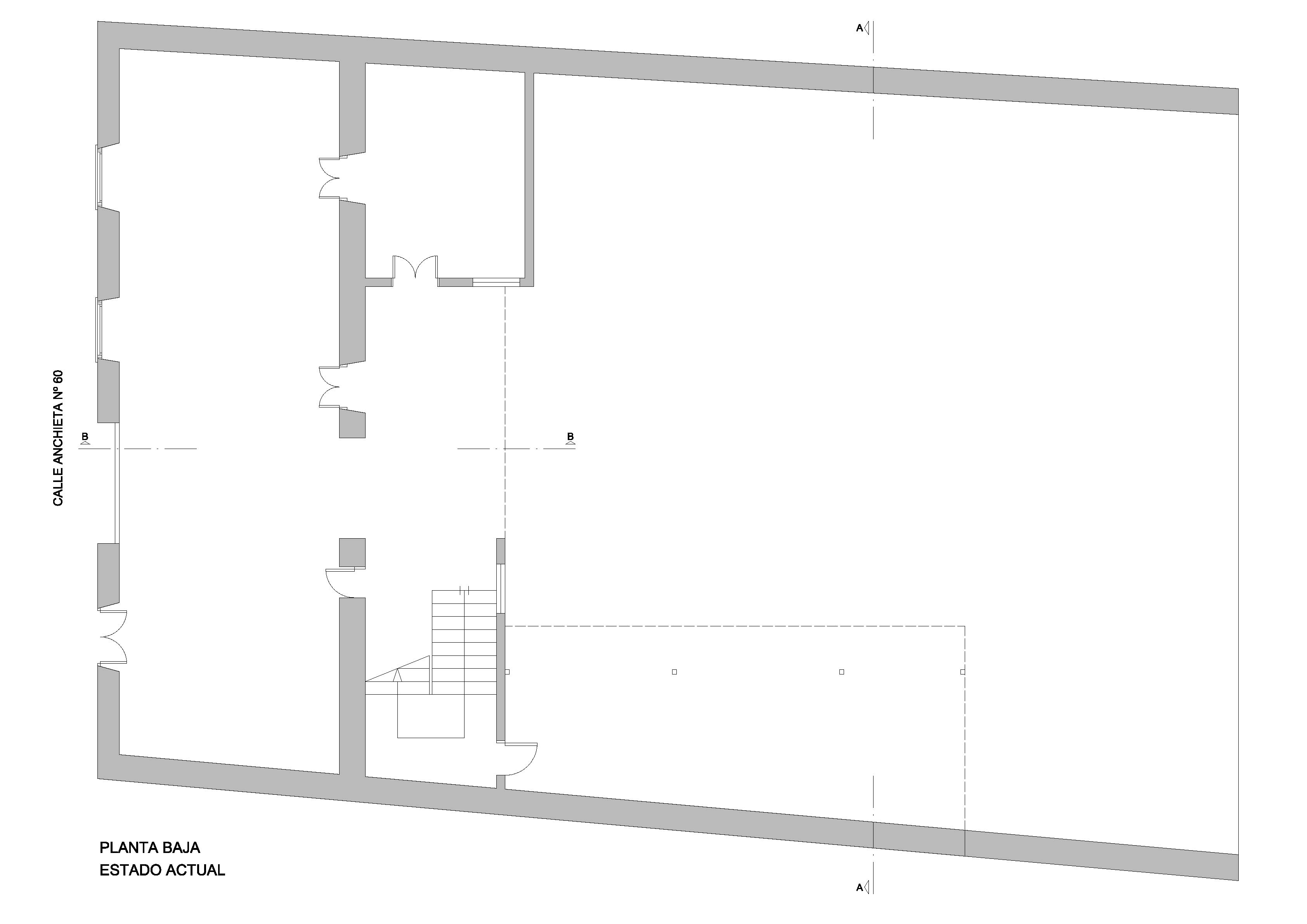
Planta Baja Original

Publicado el 15/03/2013 a 3368 × 2381 en Anchieta 60 – Rehabilitación de casa canaria para 7 viviendas
Crea un blog o una web gratis con WordPress.com.
Privacidad y cookies: este sitio utiliza cookies. Al continuar utilizando esta web, aceptas su uso.
Para obtener más información, incluido cómo controlar las cookies, consulta aquí: Política de cookies
  • Suscribirse Suscrito
    • RQR arquitecto
    • ¿Ya tienes una cuenta de WordPress.com? Inicia sesión.
    • RQR arquitecto
    • Suscribirse Suscrito
    • Regístrate
    • Iniciar sesión
    • Copiar enlace corto
    • Denunciar este contenido
    • Ver la entrada en el Lector
    • Gestionar las suscripciones
    • Contraer esta barra